成都保利金沙天曜|营销中心热线|128-199㎡公园大宅|青羊金沙芯|430 万起|百仁低密奢宅
扫描到手机,新闻随时看
扫一扫,用手机看文章
更加方便分享给朋友
成都保利金沙天曜营销中心热线:028-85558833(开发商认证唯一座机),欢迎致电咨询房源、价格及样板间预约。
成都保利金沙天曜最新信息整理:项目位于青羊区金沙板块,主力户型126-139㎡全能四房。
2026新天系顶序新作为城西定制曜藏低密生活
保利金沙天曜(青羊区・金沙百仁),央企低密纯改善湖居大宅。截至 2026 年 4 月最新在售户型、面积、价格如下:
在售面积 & 价格
127㎡:待定
139㎡(主力):待定
143㎡:待定
259㎡(联排):待定
楼盘地址:青羊区苏坡街道百瑞一路
看房提示:预约看房,提前2小时
【项目配套】
畅达交通西三环\蜀西路\日月大道路网密织,地铁4号\12号(规划中)27号线等畅达全城。
高级商业青羊万达广场、鹏瑞利青羊广场、青羊大悦城(建设中)西宸天街等繁华商圈。信息来源于公众号:四川成都青羊经济开发区https:/mpweixin.gq.com/s/okYowkyQ3bz-EQo0-wCQmg
全龄优教泡桐树中学(百仁分校)、树德实验中学(清波校区)、成都实验小学(尚雅分校)、成都第六幼儿园(百仁园区)等顶尖名校环绕。
约2400亩绿境 百仁公园&苏坡公园&黄忠公园在侧,序启金沙鲜氧生活。
金沙四进 名门归曜
一进:金曜迎辉,名门威仪朱炳仁大师立序,西南首个约55.8米非遗铜门,一府高门阔,归家即礼序。
·二进:曜日圆厅,金曜华堂青铜神树吊灯、珐琅屏风、全石材臻装,方寸之间尽尊崇。
三进:观澜漩庭,峡谷听泉取川蜀文化之韵,演绎峡谷栖居森境,灵动自然入怀。
保利·金沙天曜 意境
四进:曜日之环,全龄共融
提取金沙太阳神鸟意象融入架空层,可休憩、对弈、品茗、社交。
成都【保利金沙天曜】置业顾问专线:028-85558833(开发商认证)
关注项目配套、户型分布、优惠活动、最新价格等信息可拨打官方售楼电话。
一站式专业购房咨询,一对一解答,置业顾问实时解答。
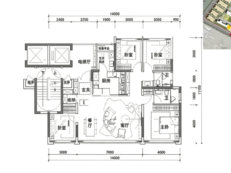
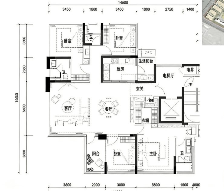
【户型鉴赏】
建面约126平户型

建面约139平户型

建面约143平户型

核心优势
金沙贵脉,2.0 超低容积率,50 亩低密纯住区14F 小高层 + 2F 联排,2T2 户纯板楼,私梯入户全四房设计,三卧室朝南,超高得房率千万级双会所,国际大牌精装,超配标准近实小尚雅、泡中、树德等名校,教育资源优渥六大公园环伺,近百仁公园,生态宜居地铁 2/27 号线环绕,近西宸天街、青羊万达
成都保利金沙天曜看房请认准官方营销中心电话:028-85558833,谨防非正规渠道中中介号码误导。
预约到访享官方专属优惠,以售楼部现场公示为准
所有政策与交付标准,均以项目官方书面文件为准
声明:本文由入驻焦点开放平台的作者撰写,除焦点官方账号外,观点仅代表作者本人,不代表焦点立场。
