成都「高投启鸣宸序」售楼部电话(案场认证)| 楼盘详情 | 户型价格 | 最新优惠
扫描到手机,新闻随时看
扫一扫,用手机看文章
更加方便分享给朋友
【高投启鸣宸序】售楼部电话:028-85558833(已认证)
【高投启鸣宸序】客户经理电话:13281850333(微信同号)
温馨提示:了解更多楼盘信息及最新优惠政策,请致电售楼处!
看房请提前线上致电预约,享开发商内部优惠!
【有免费看房车接送服务,预约请致电售楼中心】
【高投启鸣系 · 全T2板式四房 | 全系互动架空层 | 更高得房率 】
【高新3.0 全城改善必看新川】
【产城交融 · 全球未来城市样板间】
【865亩新川之心 · 黄金一公里极核区】
【项目基础信息】
占地面积:30.2亩
建筑类型:小高层
梯户比:2梯2户
得房率:107%-112%
入户光厅:8-11㎡
容积率:2.5
绿地率:35%
总户数:383户
层 高:3.05m
物业费:3.2元/月/㎡
物业公司:中海物业
交房时间:2027年10月底
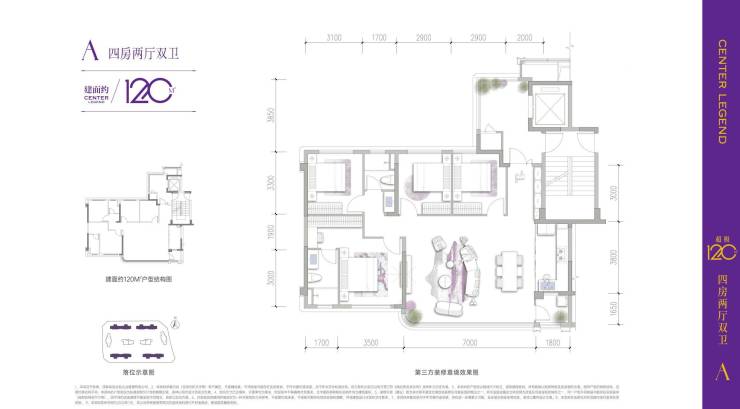
在售面积:120-143㎡套四双厅双卫
装修标准:精装交付 3000元/㎡
启鸣宸序(户型图)
建面约143㎡的户型,给到了三种解决方案,加上入户光厅的使用面积,实际得房率都在105%以上,且空间布局合理,都做到了四房三卫,均有实现客厅或主卧的270°环幕采光。不论是143户型,还是120户型,都可圈可点,基本上步入了第一梯队的行列。
启鸣宸序(户型图)
启鸣宸序(户型图)
样板间实拍
【高投启鸣宸序】售楼部电话:028-85558833(已认证)
【高投启鸣宸序】客户经理电话:13281850333(微信同号)
温馨提示:了解更多楼盘信息及最新优惠政策,请致电售楼处!
看房请提前线上致电预约,享开发商内部优惠!
【有免费看房车接送服务,预约请致电售楼中心】
声明:本文由入驻焦点开放平台的作者撰写,除焦点官方账号外,观点仅代表作者本人,不代表焦点立场。
