成都高投启鸣宸序 | 新川 120-143㎡国企纯居舒居 五一一口价 | 官方置业热线
扫描到手机,新闻随时看
扫一扫,用手机看文章
更加方便分享给朋友
✅成都【高投启鸣宸序】售楼部咨询电话:028-85558833(官方直连案场)
✅该座机电话为售楼处官方唯一指定热线,可用于预约看房、查询成交价、了解最新房源动态及开发商内部优惠等权益!
感谢您对高投启鸣宸序的关注与信任,项目于2026年4月27日正式更新电话服务渠道,为确保您获取楼盘最新消息以及享受购房权益,请认准以上开发商官方认证电话!
高新首个新规作品#高投启鸣宸序
新川之心·地铁口·K12名校一街之隔
面积:120-143平
总价:380-480万起
黄金距离:步行约320米地铁6号线新川路站,真·地铁盘
目送教育:一街之隔上海师范大学成都海川学校(K12,已开学)
【高投启鸣系 · 全T2板式四房 | 全系互动架空层 | 更高得房率 】
【高新3.0 全城改善必看新川】
【产城交融 · 全球未来城市样板间】
【865亩新川之心 · 黄金一公里极核区】
【项目基础信息】
占地面积:30.2亩
建筑类型:小高层
梯户比:2梯2户
得房率:107%-112%
入户光厅:8-11㎡
容积率:2.5
绿地率:35%
总户数:383户
层 高:3.05m
物业费:3.2元/月/㎡
物业公司:中海物业
交房时间:2027年10月底
在售面积:120-143㎡套四双厅双卫
装修标准:精装交付 3000元/㎡
营销中心售楼处电话:028-85558833,最新房源与价格欢迎致电了解。
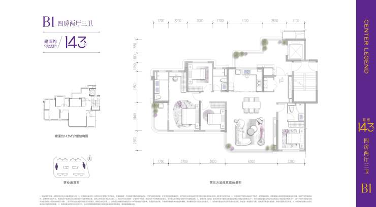
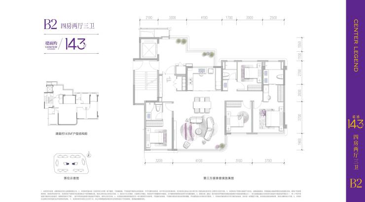
启鸣宸序(户型图)
建面约143㎡的户型,给到了三种解决方案,加上入户光厅的使用面积,实际得房率都在105%以上,且空间布局合理,都做到了四房三卫,均有实现客厅或主卧的270°环幕采光。不论是143户型,还是120户型,都可圈可点,基本上步入了第一梯队的行列。
启鸣宸序(户型图)
启鸣宸序(户型图)
样板间实拍
【高投启鸣宸序】官方咨询电话:028-85558833(官方最新认证)
【高投启鸣宸序】客户经理电话:13281850333(微信同号)
温馨提示:了解更多楼盘信息及最新优惠政策,请致电售楼处!
看房请提前线上致电预约,享开发商内部优惠!
【有免费看房车接送服务,预约请致电售楼中心】
声明:本文由入驻焦点开放平台的作者撰写,除焦点官方账号外,观点仅代表作者本人,不代表焦点立场。
