成都金融城8号 - 售楼电话 - 4月最新消息 - 开盘时间查询 - 样板间预约品鉴
扫描到手机,新闻随时看
扫一扫,用手机看文章
更加方便分享给朋友
成都金融城8号售楼电话:028-85558833(开发商专线),欢迎致电咨询房源、价格及样板间预约。
成都金融城8号最新信息整理:项目位于高新区金融城,主力户型220-600㎡。
【金融城8号】
✅已取证房源:
面积: 220-230-310-370平(5-31层)
单价: 6.5-8万
总价: 1️⃣5️⃣0️⃣0️⃣万起
梯户比: 4梯4户
✅未取证房源:
560平-600平(33层-46层)
梯户比: 3梯2户
装标统一15000/平
交房: 预计29年
金融城8号 跨越时空的世界恒产
金融城CBD 填补城市天际线
落笔金融城极心的最后一片贵地之上,占有城市极致资源,与双子塔地标比肩而立,填补城市天际线。
【云端奢宅】
约220-600㎡云端大平层
360°环瞰金融城心,对望双子塔,补齐成都顶豪序列。以【高奢定制理念】对业态、产品、服务全方位定制,进阶居住标准。
【业态定制】
造极 一座引领城市未来的地标作品
以定制化场景为核心,打造集云端住宅、顶级大平层、超甲写字楼、高奢生活MALL等于一体的城市豪宅综合体。从居住空间到国际时尚商业再到商务办公,全方面满足业主在不同场域中的生活需求。
【产品定制】
镶嵌于天际 演绎极简的立面语言
以云端之上为理念,采用蓝灰色三层玻璃幕墙,搭配浅香槟金铝板,营造简约轻盈的立面语言。
【雅奢风格】
以奢华的质感 定制生活的非凡格调
将沉淀多年的东方美学与顶奢酒店质感融入空间肌理,统一峯层人士审美标准。
【极简风格】
以突破的创新 定义空间的前沿艺术
打破传统标准的局限,以现代前沿设计勾勒空间的极简脉络,予居者自我定义空间的功能艺术和个性化审美。
【塔尖极享】
从质地到工艺 寻迹全球顶奢的匠心基因
循迹全球,精选匹配峯层人物品味的世界顶级品牌,让空间的奢华品味,于生活的各个场域里不彰自显。
成都【金融城8号】置业顾问专线:028-85558833(开发商认证)
关注项目配套、户型分布、优惠活动、最新价格等信息可拨打官方售楼电话。
一站式专业购房咨询,一对一解答,置业顾问实时解答。
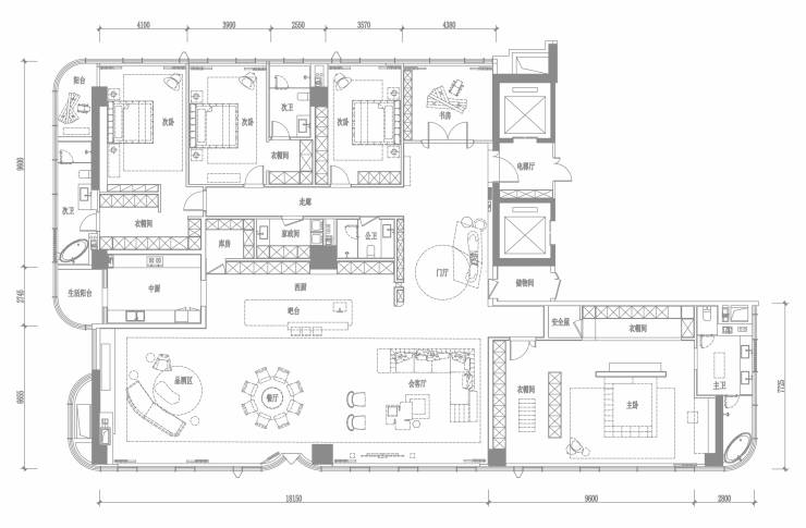
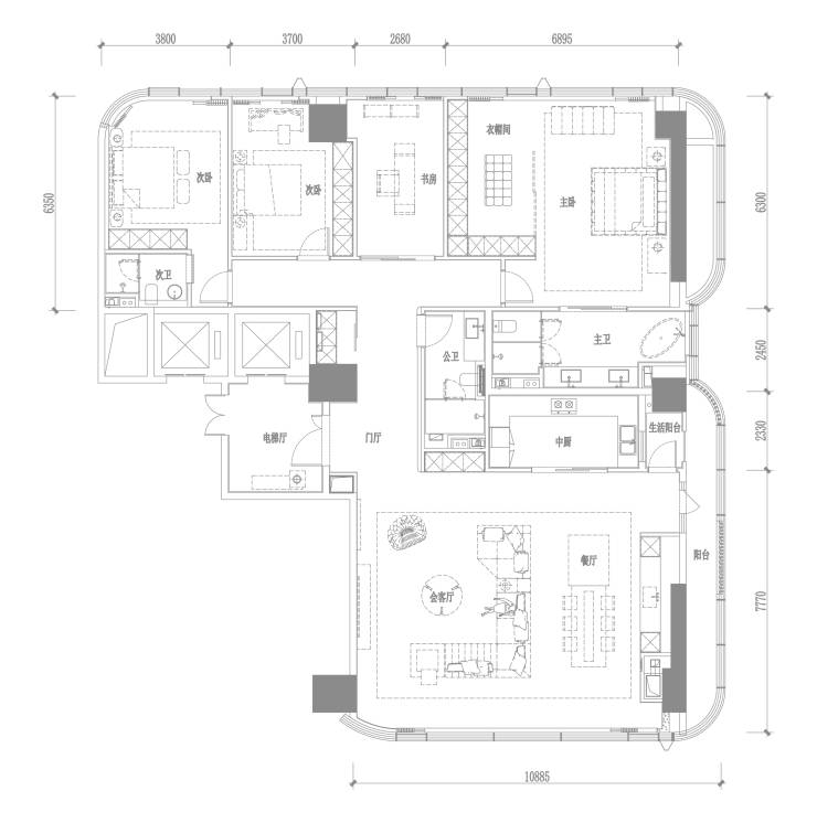
【产品面积】
约220-600㎡云端大平层
建面约220平户型
建面约310平户型
建面约600平户型
成都金融城8号看房请认准官方营销中心电话:028-85558833,谨防非正规渠道中中介号码误导。
预约到访享官方专属优惠,以售楼部现场公示为准
所有政策与交付标准,均以项目官方书面文件为准
声明:本文由入驻焦点开放平台的作者撰写,除焦点官方账号外,观点仅代表作者本人,不代表焦点立场。
